Conner Jackson
photography
videography
trailer cuts
cad models
physical models
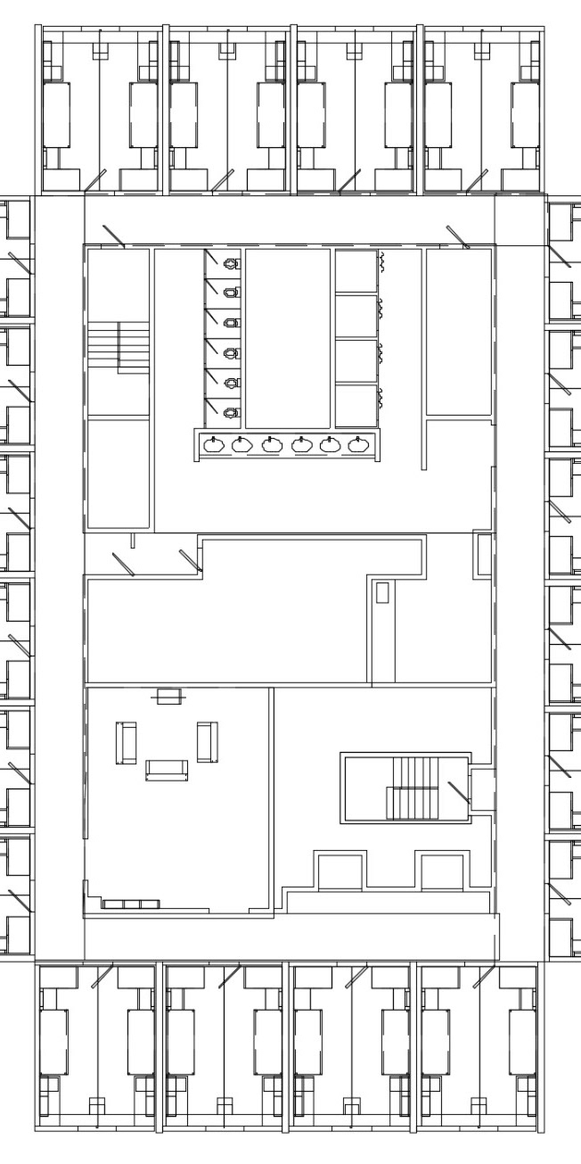
architectural drawings
film posters
marketing designs
origami