- roundabout design, boise id -
- Taxilane and hangar pad design -
- moscow/troy highway 8 corridor -
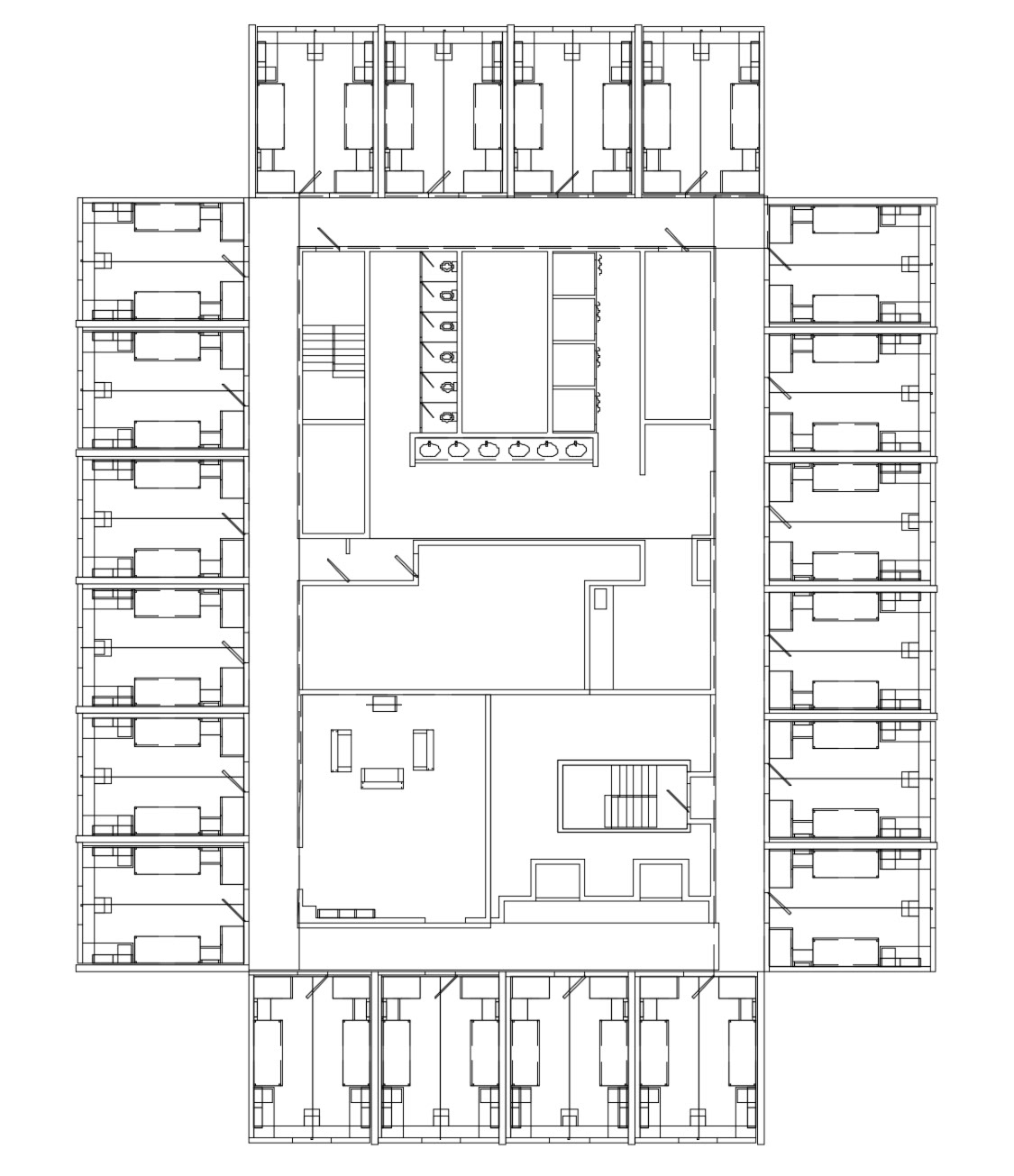
- theophilus tower, university of idaho -
- parcel grading and alignment -
Back to Top